El grupo Europa Prefabri ha finalizado el suministro e instalación de un nuevo conjunto modular prefabricado para el Club Deportivo Alcoyano ( Alcoy, Alicante – Comunidad Valenciana)
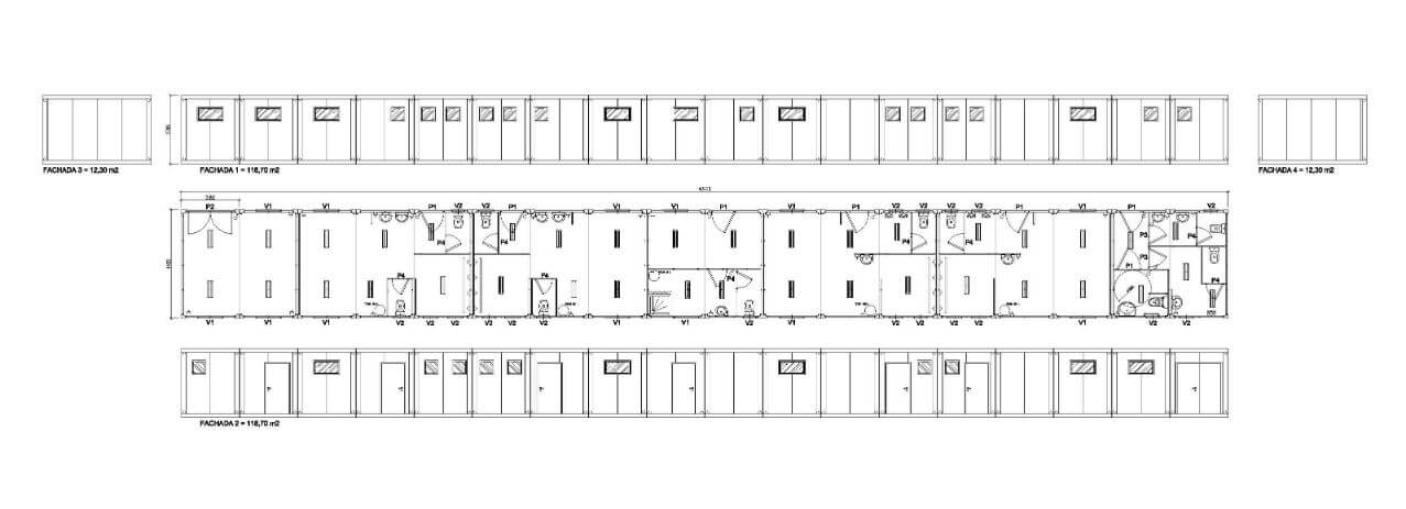
Proyecto especial “llave en mano” de vestuarios prefabricados que forman un espacio modular unificado, que incluye vestuarios y aseos completos para 4 equipos, vestuario y aseo completo para el equipo arbitral, aseos independientes y almacén, incluidos aseos, accesos y elementos adaptados conforme a normativa.
La superficie total del espacio modular es de 149,55 m2, distribuidos de la siguiente manera:
- Almacén (19,74 m2)
- Vestuario 1 (30,11 m2)
- Vestuario 2 (30,11 m2)
- Vestuario 3 (30,11 m2)
- Vestuario 4 (30,11 m2)
- Vestuario árbitros (19,74 m2)
- Aseos hombres y mujeres (19,74 m2).

Estas son algunas de las características constructivas de este espacio modular único:
- El conjunto modular está formado por 18 módulos prefabricados de dimensiones exteriores (largo x ancho x alto) 4.400 x 2.350 x 2.800 mm, con una superficie construida de 10,34 m² y una altura interior libre de 2.500 mm.
- El material elegido para la construcción de la estructura es acero de calidad S275JR, para perfiles laminados en caliente y DX51D para perfiles de chapa galvanizada. Acabado en color gris RAL 9002.
- Suelos de armado de hormigón HA25/F/20/I de alta resistencia (300 kg/m2), con capa de compresión y acabado en pavimento de gres antideslizante y gresite en zonas húmedas.
- Tabiquería exterior formada por panel sándwich machihembrado, con aislamiento de poliuretano de espesor 40 mm y densidad 40 kg/m2 (normativa de Reacción al fuego: C s3 d0, transmitancia térmica: K=0.583W/m²K. y color Ral 9002) acabados en acero galvanizado perfilado y prelacado y como mejora de prestaciones, se ha dotado de un extra de asilamiento formado por panel sándwich de alma de lana de roca de espesor de asilamiento 125 mm, y densidad 90 Kg/m3, cubierto de chapas de acero galvanizado de espesor 0,45 mm, que otorga en su conjunto un nievel de transmitancia térmica del cerramiento de U=0,33W/m2 K.
- Además, se incluye acabado en revestimiento exterior en elegante madera de OKAN, un material muy resistente a la descomposición; una madera especialmente adecuada para usos con riesgo de humidificación permanente o duradera.
- Tabiquería interior realizada en panel sándwich de 35 mm de espesor, formada por chapa de acero galvanizada y prelacada en poliéster silicona con un espesor de 50/100, inyectados con espuma de poliuretano.
- Cubierta acabada en falso techo interior de lamas de chapa galvanizada prelacada en blanco de e=0,6mm., con aislamiento de fibra de vidrio de e=80mm, chapa perfilada galvanizada de e=0,6mm con caída a dos aguas hacia los canalones ocultos en el prefabricado (una bajante oculta en cada esquina).
- Para evitar posibles entradas de humedad o filtraciones debido al agua o la nieve, se ha instalado sobre la cubierta modular una sobrecubierta metálica a dos aguas de pendiente mínima.
- Instalación eléctrica completa conforme al Reglamento Electrotécnico de Baja Tensión (REBT) y las recomendaciones del CTE, previéndose una tensión de 400/230 V e iluminación mediante luminarias estancas tipo LED con protección IP66 clase 2, que incluye alumbrado de emergencia con lámparas de señalización LED, grado de protección IP 42.
- Espacio modular dotado de sistema de climatización completo a las dependencias principales, siendo la capacidad de las unidades adecuada para cada estancia, garantizándose una temperatura en invierno de 21º C a 23º C y en verano de 23º C a 25º C, regulable mediante termostato.
- Incluye asimismo equipamiento de protección contra incendios (extintores de polvo seco polivalente de 6 Kg, extintor de CO2 de 5 Kg y señales fotoluminiscentes de riesgo diverso)
- Todo el conjunto modular está equipado con instalación de fontanería y saneamiento completa, con materiales y elementos de primeras calidades.
Los módulos prefabricados pueden resolver cualquier situación que se presente de una forma rápida, económica y eficaz. En caso de estar interesado en ellos no dude en ponerse en CONTACTO con nosotros para resolver cualquier tipo de duda y le ayudaremos a mejorar el proyecto que tenga en mente.








